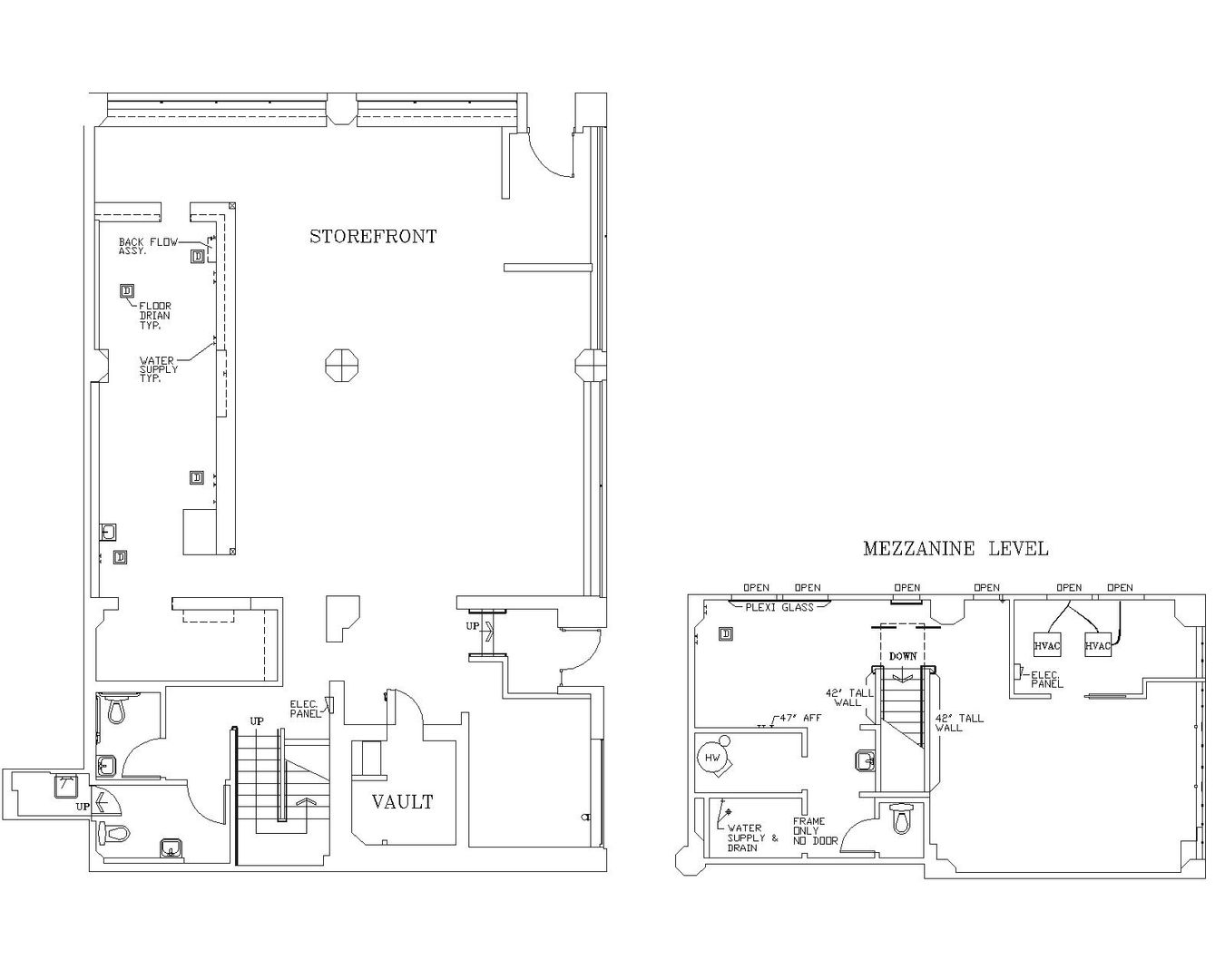
1200 SW Morrison St, Portland, OR 97205

1200 SW Morrison St, Portland, OR 97205

Terminal Sales Building